Maison à Beckerich

Maison à Beckerich

  • Localisation

    Beckerich
  • Prix de vente

    915000
  • Surface habitable

    195
  • Nombre de chambres

    3
  • Place(s) de parking

    2
  • Classe d'isolation thermique

    A
  • Classe énergétique

    A



La maison n.02 d'une surface total de 195 m² (surface habitable de 134 m²) se compose comme suit :

rez-de-chaussée :

garage pour deux voitures,
un hall,
le local chaufferie,
une cave
une buanderie

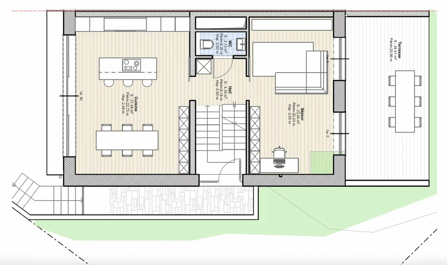
1er étage :

spacieux séjour
un hall d’entrée avec un WC séparé
une cuisine ouverte sur une salle à manger
une grande terrasse de 24m2 accès avec accès au jardin

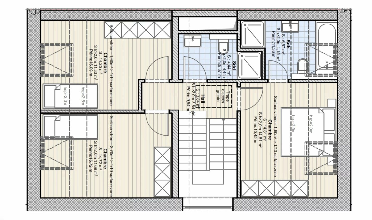
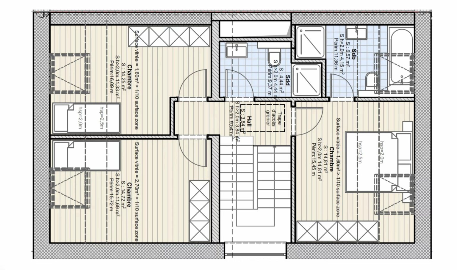
combles :

hall de nuit
3 chambres à coucher
une salles de bain
une salle de douche
un grenier

Adresse : 4, Burgaass, L-8522 Beckerich

Voir tout

Equipement

  • terrasse
  • garage
  • cuisine
  • cave
  • jardin
  • grenier
  • triple vitrage
  • buanderie

Ready
for the
next floor
?

Nextfloor
Résumé de la politique de confidentialité

Ce site utilise des cookies afin que nous puissions vous fournir la meilleure expérience utilisateur possible. Les informations sur les cookies sont stockées dans votre navigateur et remplissent des fonctions telles que vous reconnaître lorsque vous revenez sur notre site Web et aider notre équipe à comprendre les sections du site que vous trouvez les plus intéressantes et utiles.