Commerce / Bureau à Belval

Commerce / Bureau à Belval

  • Localisation

    Belval
  • Prix de vente

    720000
  • Surface habitable

    132



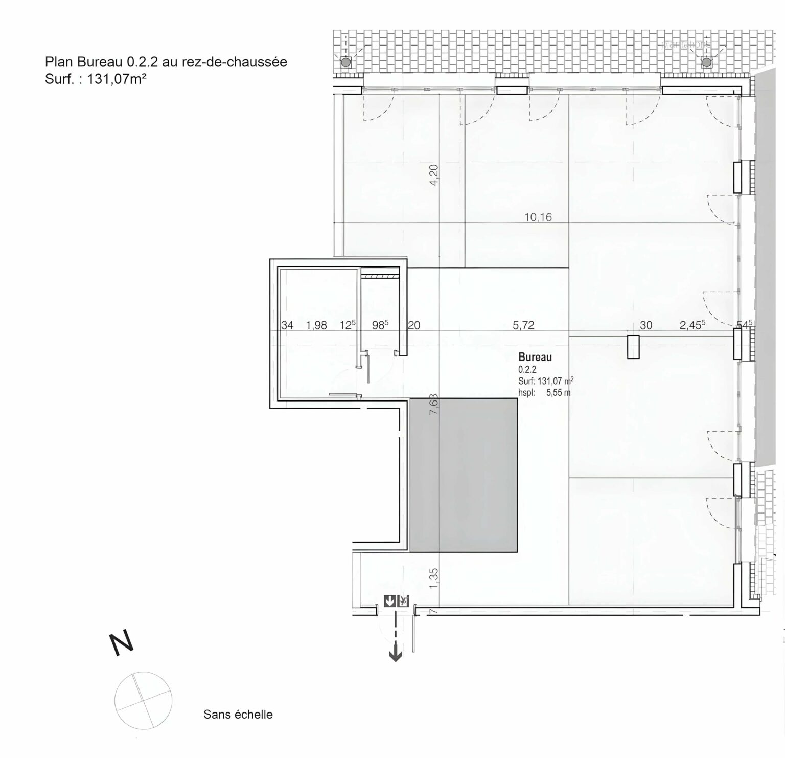
Local commercial neuf à Belval - Résidence Manhattan

Offrez à votre activité un emplacement stratégique au sein du projet Manhattan, situé 4, Rue Jean Jacques Rousseau L-4368 au cœur du quartier dynamique de Belval.

Pensé pour répondre aux besoins des professionnels et commerçants ce projet allie modernité, visibilité et accessibilité.

Lot B022 :

Surface : 132 m² au rez-de-chaussée, avec une excellente visibilité sur rue

Livré en état Casco : aménagement entièrement personnalisable selon votre activité.

Vitrine généreuse et accès direct, idéal pour un commerce ou une profession libérale.

En options :

- Places de parking privatives disponibles au prix de 45.000 €
- Pièces de stockage disponibles à la vente entre 55.000€ et 60.000€

Découvrez tous nos biens sur nextfloor.lu.

Voir tout

Equipement

Ready
for the
next floor
?

Nextfloor
Résumé de la politique de confidentialité

Ce site utilise des cookies afin que nous puissions vous fournir la meilleure expérience utilisateur possible. Les informations sur les cookies sont stockées dans votre navigateur et remplissent des fonctions telles que vous reconnaître lorsque vous revenez sur notre site Web et aider notre équipe à comprendre les sections du site que vous trouvez les plus intéressantes et utiles.