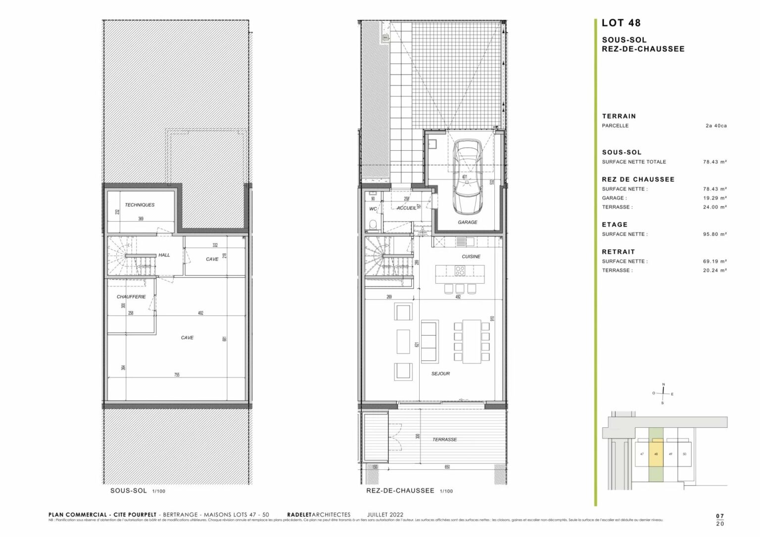
Maison à Bertrange
-
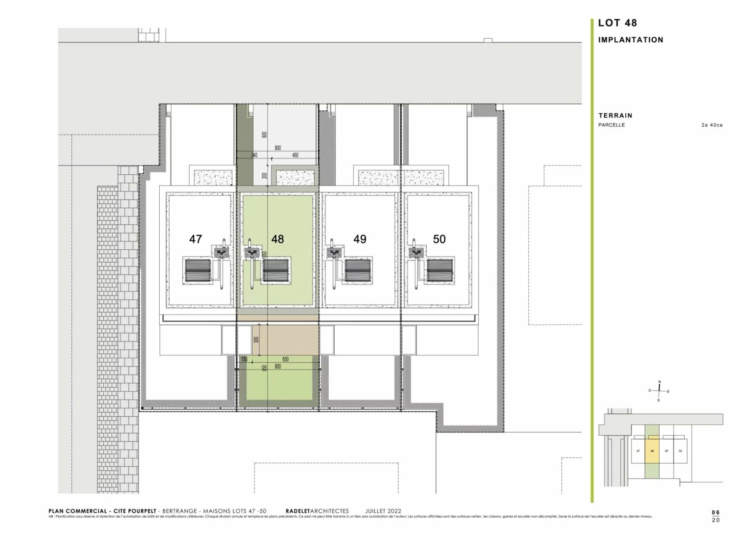
Localisation
Bertrange
-
Prix de vente
2075000
-
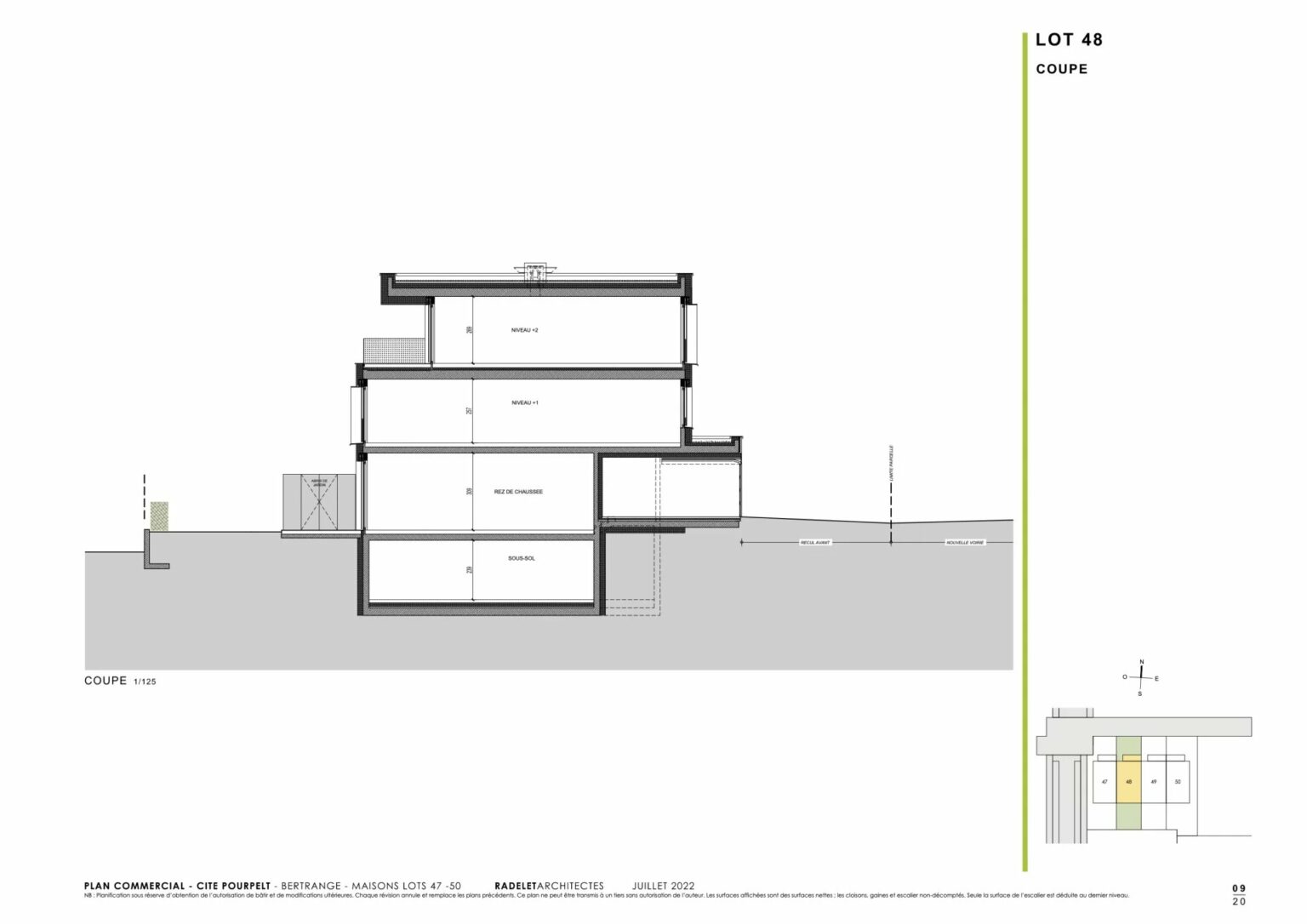
Surface habitable
244
-
Nombre de chambres
6
-
Place(s) de parking
1
-
Classe d'isolation thermique
A
-
Classe énergétique
A
Voir tout
Equipement
-
garage
-
ascenseur
-
cave
-
jardin
-
triple vitrage
-
alarme
-
buanderie