Maison à Bertrange

Maison à Bertrange

  • Localisation

    Bertrange
  • Prix de vente

    2120000
  • Surface habitable

    212
  • Nombre de chambres

    6
  • Place(s) de parking

    1
  • Classe d'isolation thermique

    A
  • Classe énergétique

    A



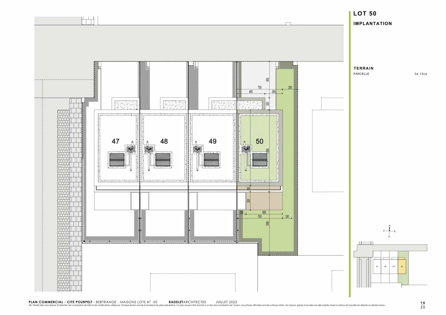
Lotissement Pourpelt à Bertrange.

Lot 50

Maison d'architecture contemporaine érigée sur un terrain de 3,13 ares aux finitions haut de gamme d'une surface habitable de 217 m2 vous séduira de par sa situation géographique ainsi que ses finitions extra.

Ce magnifique bien est composé comme suit :

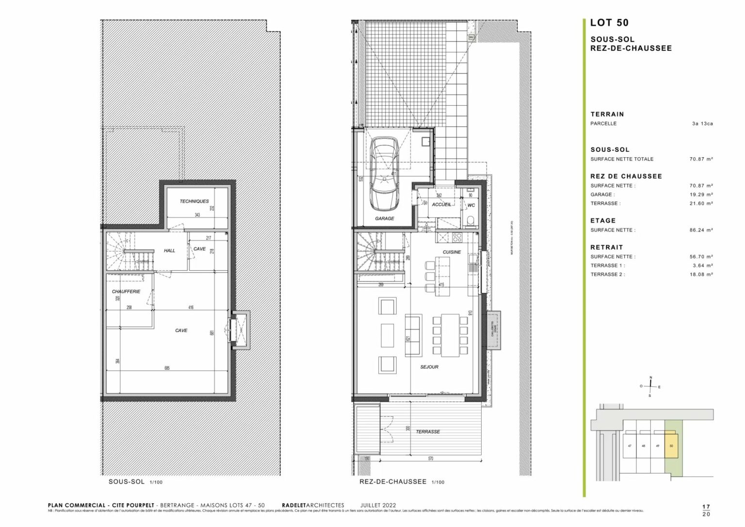
Rez-de-chaussée :

hall d'entrée avec WC séparé
une cuisine ouverte avec un grand living donnant accès à une superbe terrasse exposée Sud.
un Garage

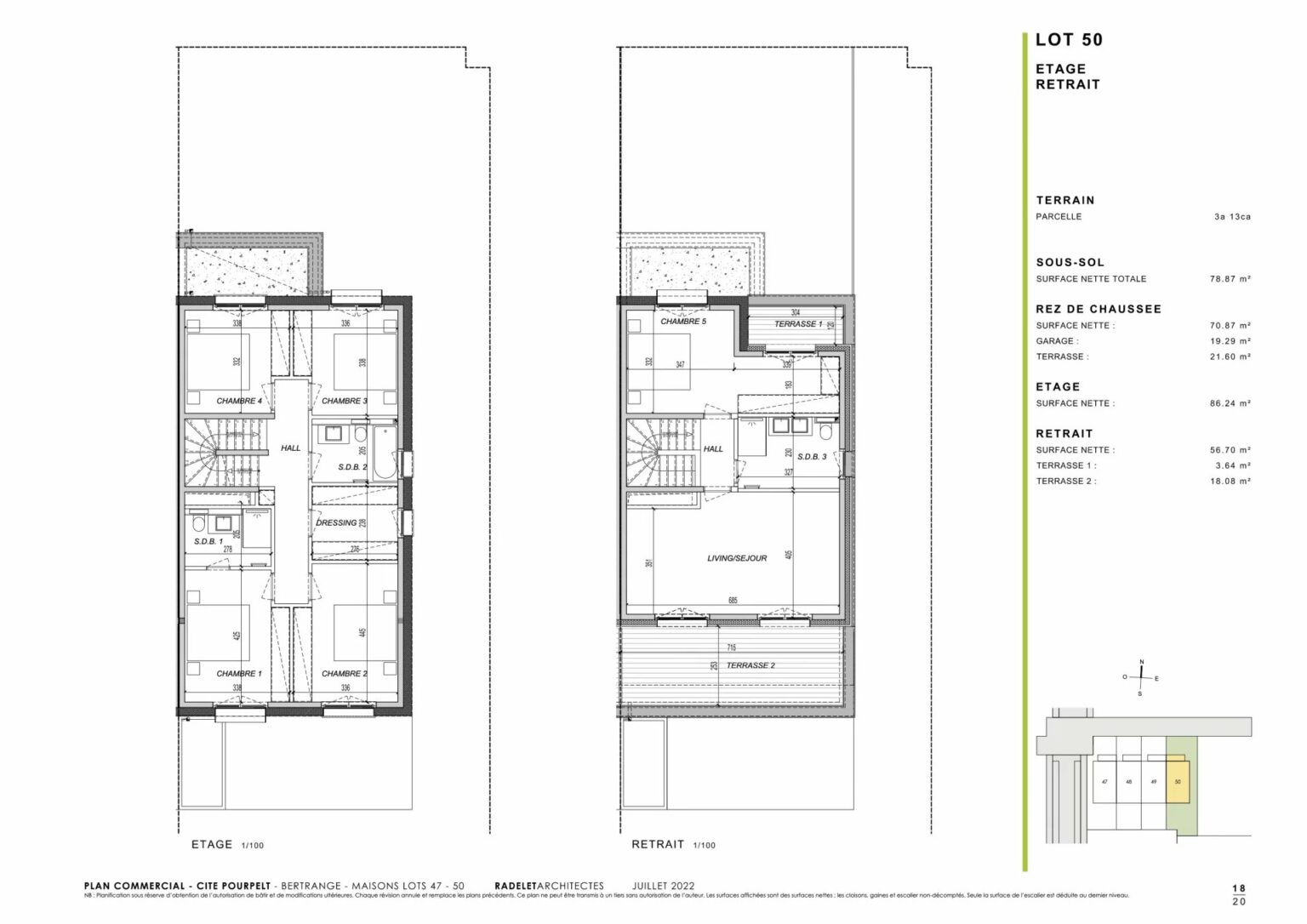
1er étage :

4 chambres à coucher dont une avec salle de bain privative et dressing
une salle de bain

2ème étage :

une chambre à coucher avec dressing et une salle de bain privative
un grand living avec accès à une terrasse exposée Sud

Au sous-sol:

deux locaux techniques, une grande cave et une buanderie.

Voir tout

Equipement

  • garage
  • ascenseur
  • cave
  • jardin
  • triple vitrage
  • alarme
  • buanderie

Ready
for the
next floor
?

Nextfloor
Résumé de la politique de confidentialité

Ce site utilise des cookies afin que nous puissions vous fournir la meilleure expérience utilisateur possible. Les informations sur les cookies sont stockées dans votre navigateur et remplissent des fonctions telles que vous reconnaître lorsque vous revenez sur notre site Web et aider notre équipe à comprendre les sections du site que vous trouvez les plus intéressantes et utiles.