Appartement à Diekirch

Appartement à Diekirch

  • Localisation

    Diekirch
  • Prix de vente

    549000
  • Surface habitable

    83.47
  • Nombre de chambres

    2
  • Classe d'isolation thermique

    A+
  • Classe énergétique

    A



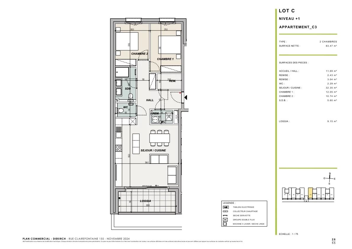
Appartement C03
Surface habitable : 83 m²

ETAGE 1:

-hall d‘entrée ( 11,69 m2)
-deux remise (2,43 et 3,04 m2))
-WC (2,29 m2)
-séjour/cuisine ( 32,35 m2)avec accès loggia (9,15 m2)
-deux chambres ( 10,74 et 12,05 m2)
-salle de bains ( 5,60 m2)

SOUS-SOL:

- 1 cave


COMMUNS:

- local vélo
- local technique
- local poubelles

ASPECTS TECHNIQUES:
- classe énergétique AAA
- construction en béton
- châssis PVC, triple vitrage
- chauffage sol, pompe à chaleur
- VMC double-flux
- revêtements et finitions de qualité

Voir tout

Equipement

  • ascenseur
  • cave
  • triple vitrage

Ready
for the
next floor
?

Nextfloor
Résumé de la politique de confidentialité

Ce site utilise des cookies afin que nous puissions vous fournir la meilleure expérience utilisateur possible. Les informations sur les cookies sont stockées dans votre navigateur et remplissent des fonctions telles que vous reconnaître lorsque vous revenez sur notre site Web et aider notre équipe à comprendre les sections du site que vous trouvez les plus intéressantes et utiles.