Appartement à Grevenmacher

Appartement à Grevenmacher

  • Localisation

    Grevenmacher
  • Prix de vente

    1118149
  • Surface habitable

    124
  • Nombre de chambres

    3
  • Classe d'isolation thermique

    A
  • Classe énergétique

    A



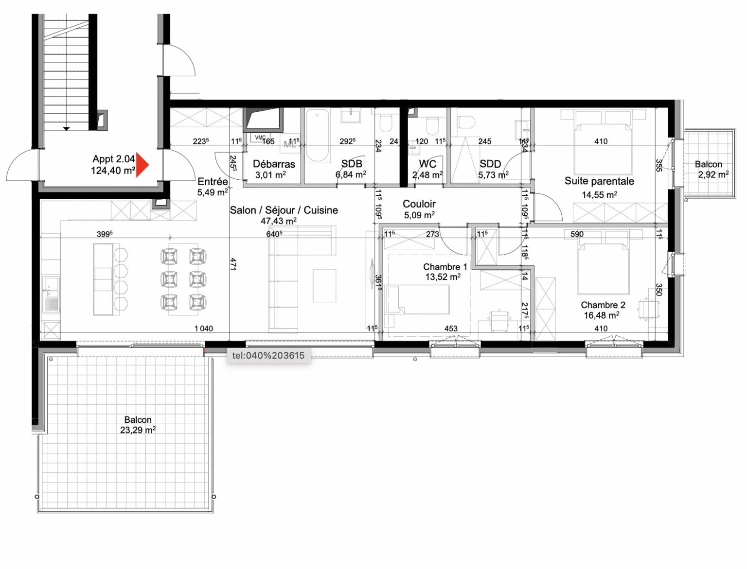
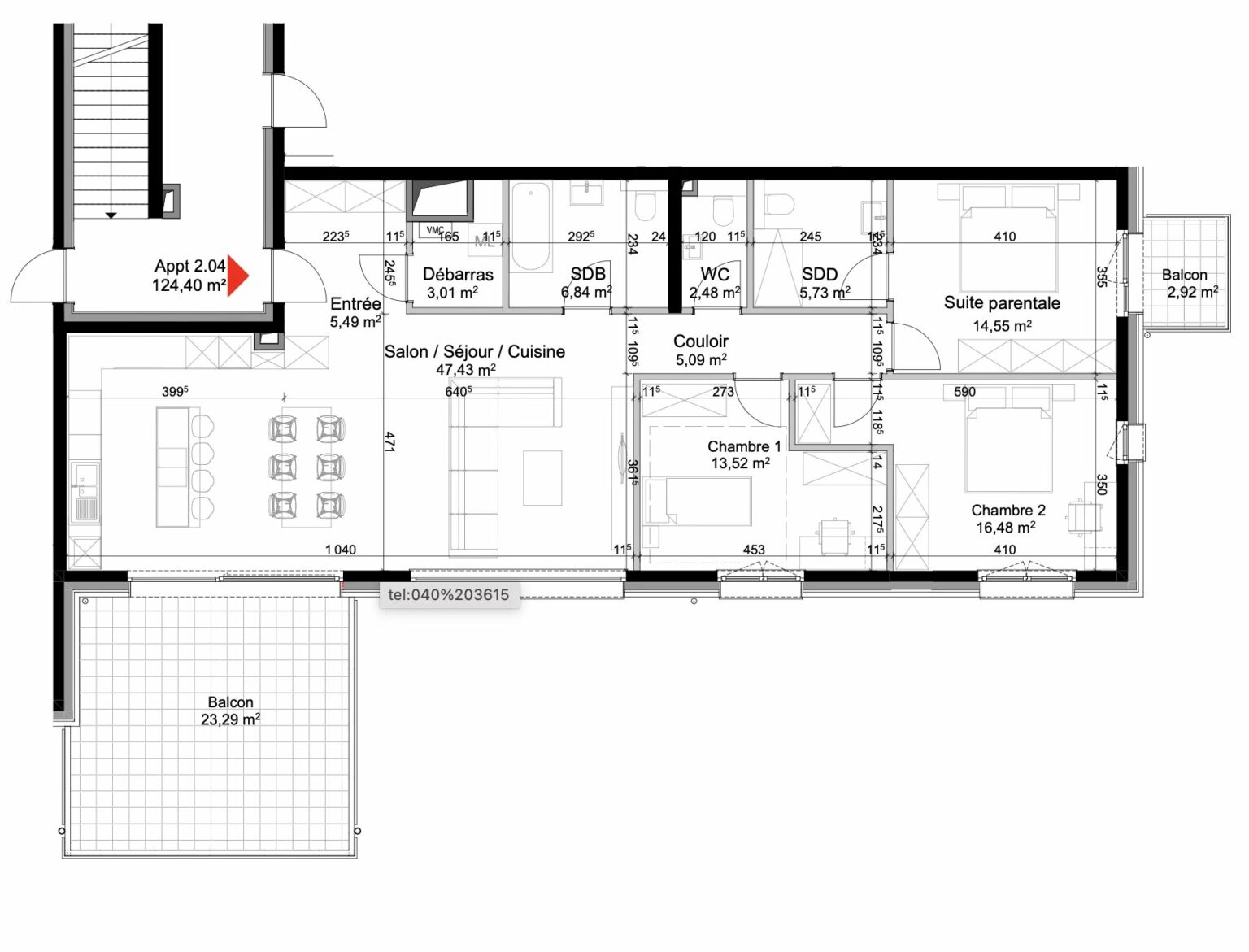
L'appartement 2-04 d'une surface de 124 m2 avec une belle vue sur la Moselle se compose comme suit :

un hall d'entrée
un séjour salle à manger d'une surface 47m2 avec accès à la terrasse de 23m2
une cuisine avec une pièce de stockage
une buanderie
3 chambres à coucher
un balcon de 3 m2
2 salles de bain
un WC séparé

Voir tout

Equipement

  • terrasse
  • ascenseur
  • cuisine
  • balcon
  • triple vitrage
  • buanderie

Ready
for the
next floor
?

Nextfloor
Résumé de la politique de confidentialité

Ce site utilise des cookies afin que nous puissions vous fournir la meilleure expérience utilisateur possible. Les informations sur les cookies sont stockées dans votre navigateur et remplissent des fonctions telles que vous reconnaître lorsque vous revenez sur notre site Web et aider notre équipe à comprendre les sections du site que vous trouvez les plus intéressantes et utiles.