Appartement à Grevenmacher

Appartement à Grevenmacher

  • Localisation

    Grevenmacher
  • Prix de vente

    885843
  • Surface habitable

    101.49
  • Nombre de chambres

    2
  • Classe d'isolation thermique

    A
  • Classe énergétique

    A



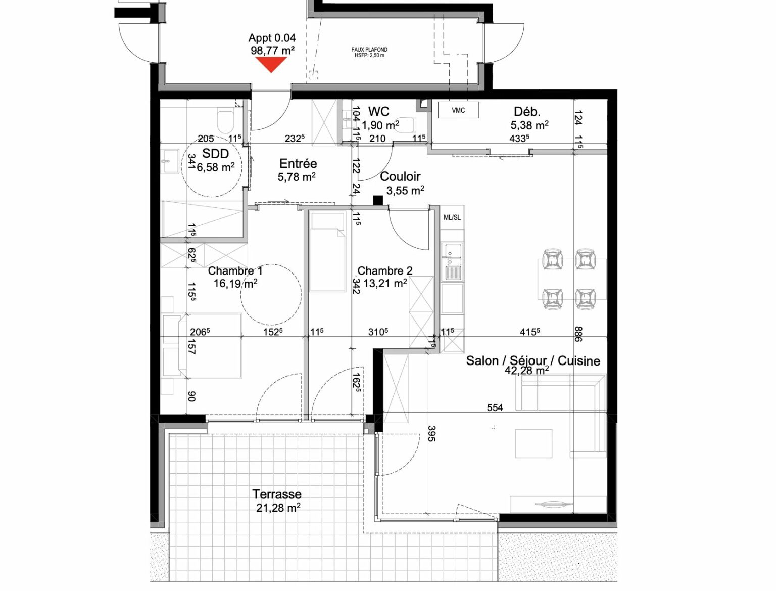
Résidence "Peninsula", 4 Route du Vin à Grevenmacher

L'appartement 0-02, d'une surface de 101 m², offrant une belle vue sur la Moselle, se compose comme suit :

- Un hall d'entrée
- Un séjour/salle à manger de 40 m² avec accès à une terrasse de 21 m²
- Un débarras
- Deux chambres
- Une salle de bains
- Un WC séparé

Contact : +352 20 28 430 ou hello@nextfloor.lu

Voir tout

Equipement

  • stockage
  • terrasse
  • ascenseur
  • cuisine
  • triple vitrage

Ready
for the
next floor
?

Nextfloor
Résumé de la politique de confidentialité

Ce site utilise des cookies afin que nous puissions vous fournir la meilleure expérience utilisateur possible. Les informations sur les cookies sont stockées dans votre navigateur et remplissent des fonctions telles que vous reconnaître lorsque vous revenez sur notre site Web et aider notre équipe à comprendre les sections du site que vous trouvez les plus intéressantes et utiles.