Appartement à Luxembourg

Appartement à Luxembourg

  • Localisation

    Luxembourg
  • Prix de vente

    1199000
  • Surface habitable

    86.46
  • Nombre de chambres

    3
  • Classe d'isolation thermique

    A
  • Classe énergétique

    A



EFFEKT propose en exclusivité un projet d'un bâtiment plurifamiliale de 7 logements au design contemporain.L'immeuble comprend quatre appartements d'une chambre à coucher, un appartement de deux chambres à coucher et deux appartement de trois chambres à coucher.

Ce bel immeuble se trouve juste à côté du CHL, de la boulangerie et de toutes les autres commodités dont on a besoin au quotidien. De plus, il y a de nombreux arrêts de bus dans le quartier, ce qui permet de se rendre dans toutes les directions.

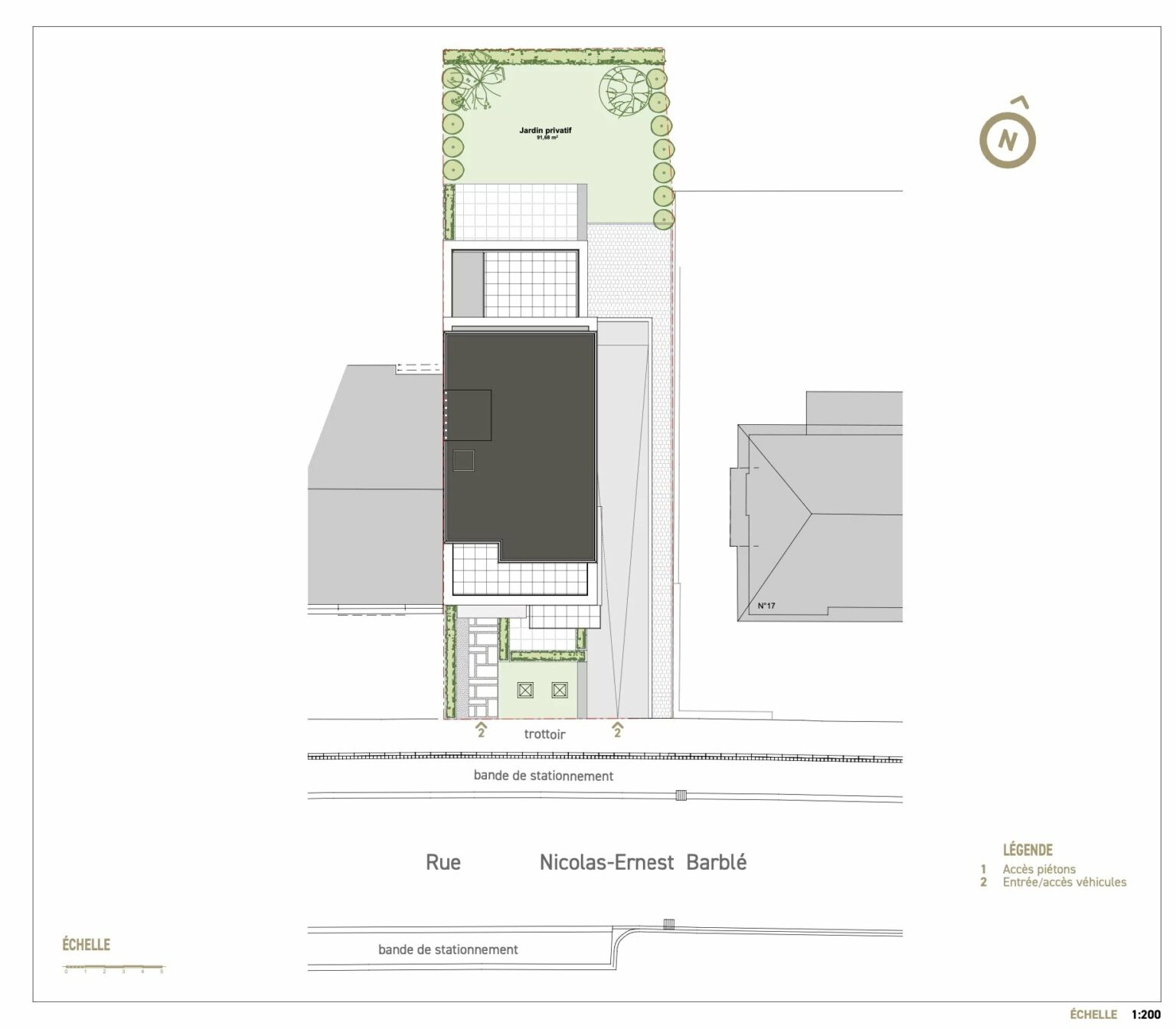
Adresse : 15,rue Nicolas - Ernest à L-1210 Luxembourg
Architecture soignée. Cahier des charges avec matériaux de premier choix et de standing
Egalement modifiable selon vos envies.

Appartement A0.1 :RDC avec jardin

Situé au rez-de-chaussée-de-chaussée, cet appartement trois chambres à coucher dispose d'une surface cadastrale totale de 90,67 m2 ,de deux terrasses de 14,00 et 26,41 m2 plus un jardin privatif de 84,68 m2

Voir tout

Equipement

  • stockage
  • terrasse
  • ascenseur
  • cuisine
  • jardin
  • triple vitrage

Ready
for the
next floor
?

Nextfloor
Résumé de la politique de confidentialité

Ce site utilise des cookies afin que nous puissions vous fournir la meilleure expérience utilisateur possible. Les informations sur les cookies sont stockées dans votre navigateur et remplissent des fonctions telles que vous reconnaître lorsque vous revenez sur notre site Web et aider notre équipe à comprendre les sections du site que vous trouvez les plus intéressantes et utiles.