Appartement à Luxembourg Merl

Appartement à Luxembourg Merl

  • Localisation

    Luxembourg Merl
  • Surface habitable

    100
  • Nombre de chambres

    2
  • Place(s) de parking

    1
  • Classe d'isolation thermique

    G
  • Classe énergétique

    H



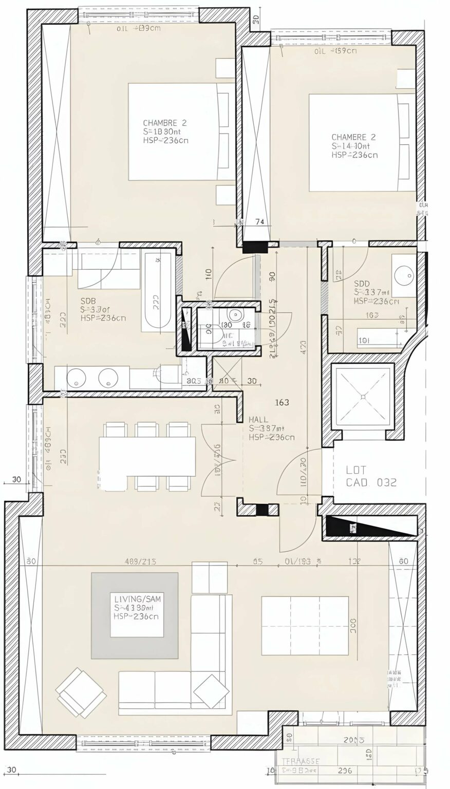
Découvrez cet appartement 2 chambres entièrement rénové d’une surface de 100 m², au premier étage d’une résidence avec ascenseur situé 20, Boulevard Pierre Dupong à Luxembourg, en vis-à-vis direct du parc de Merl.

Ce bien offrant la possibilité de créer une 3ème chambre ou d’être aménagé en bureaux professionnels, se compose comme suit :

- Un hall d'entrée
- Un salon-salle à manger
- Une cuisine avec accès au balcon
- Une chambre parentale avec salle de douche et WC
- Une 2ème chambre parentale avec salle de douche
- Un WC séparé

Complètent l'ensemble :

- Un garage box fermé
- Une cave privative de 11 m²
- Une buanderie commune

Emplacement privilégié à proximité immédiate du centre-ville de Luxembourg et en face du parc de Merl, dans un environnement résidentiel verdoyant.

Le quartier offre une excellente accessibilité grâce aux transports en commun et aux axes routiers, ainsi qu'aux écoles fondamentales, l'International School of Luxembourg, crèches, restaurants et autres commodités…

Voir tout

Equipement

  • terrasse
  • garage
  • double vitrage
  • ascenseur
  • cuisine
  • cave
  • buanderie

Ready
for the
next floor
?

Nextfloor
Résumé de la politique de confidentialité

Ce site utilise des cookies afin que nous puissions vous fournir la meilleure expérience utilisateur possible. Les informations sur les cookies sont stockées dans votre navigateur et remplissent des fonctions telles que vous reconnaître lorsque vous revenez sur notre site Web et aider notre équipe à comprendre les sections du site que vous trouvez les plus intéressantes et utiles.